









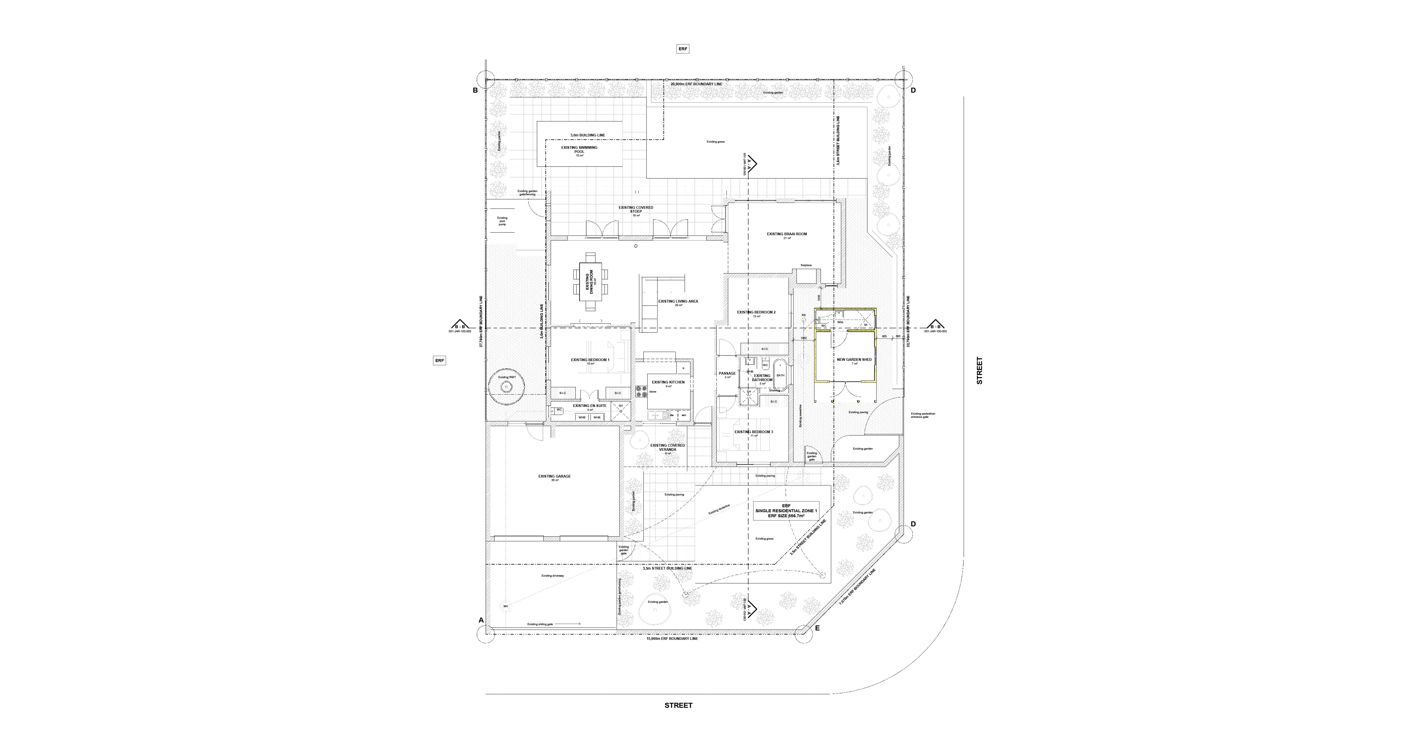
New Garden Shed | Updated House Plans
Plot Size: 556.7 sqm
Proposed Covered Carport | Undercover Veranda | Carriageway crossing | Updated House Plans
Plot: 344 sqm
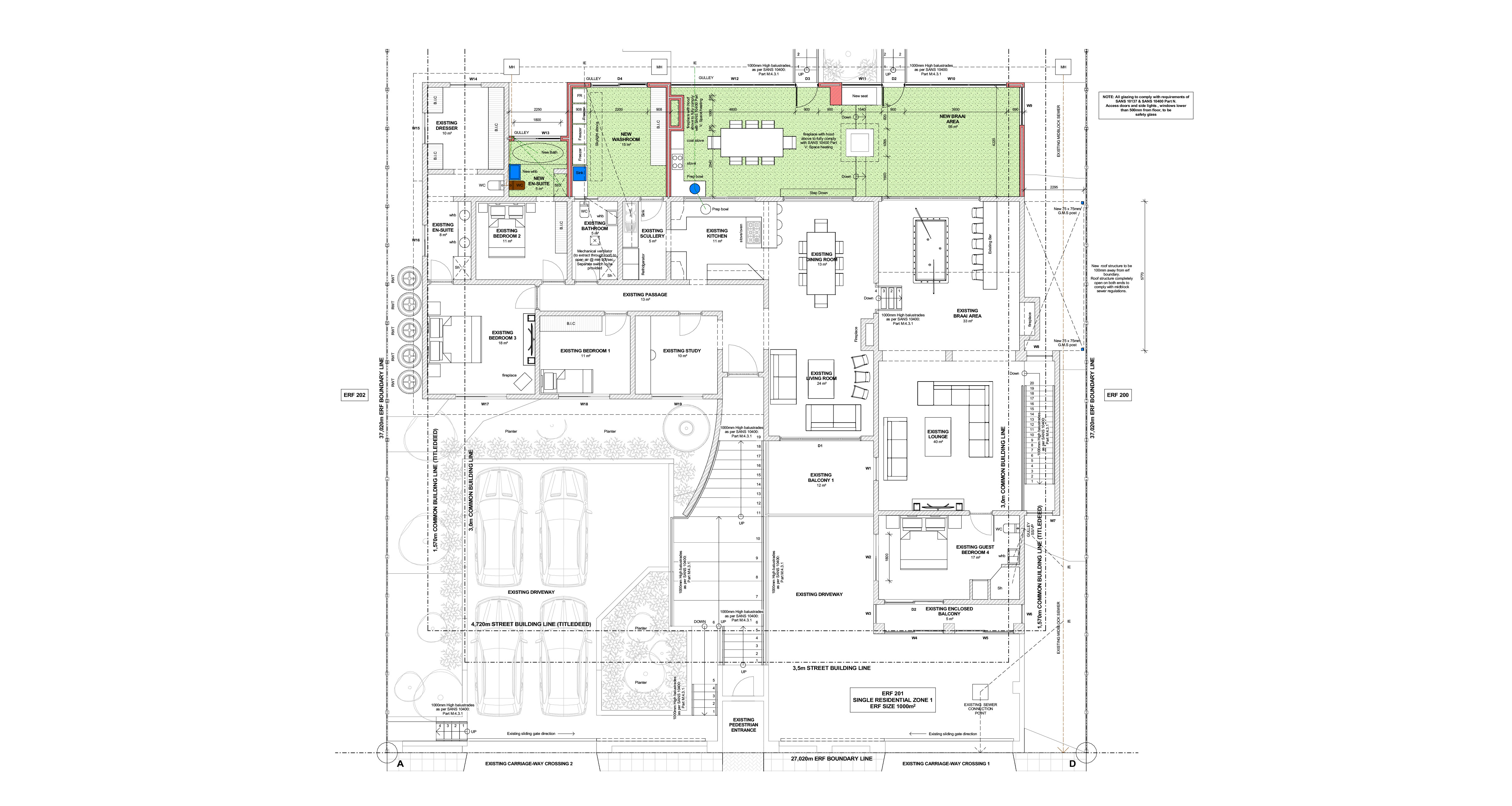
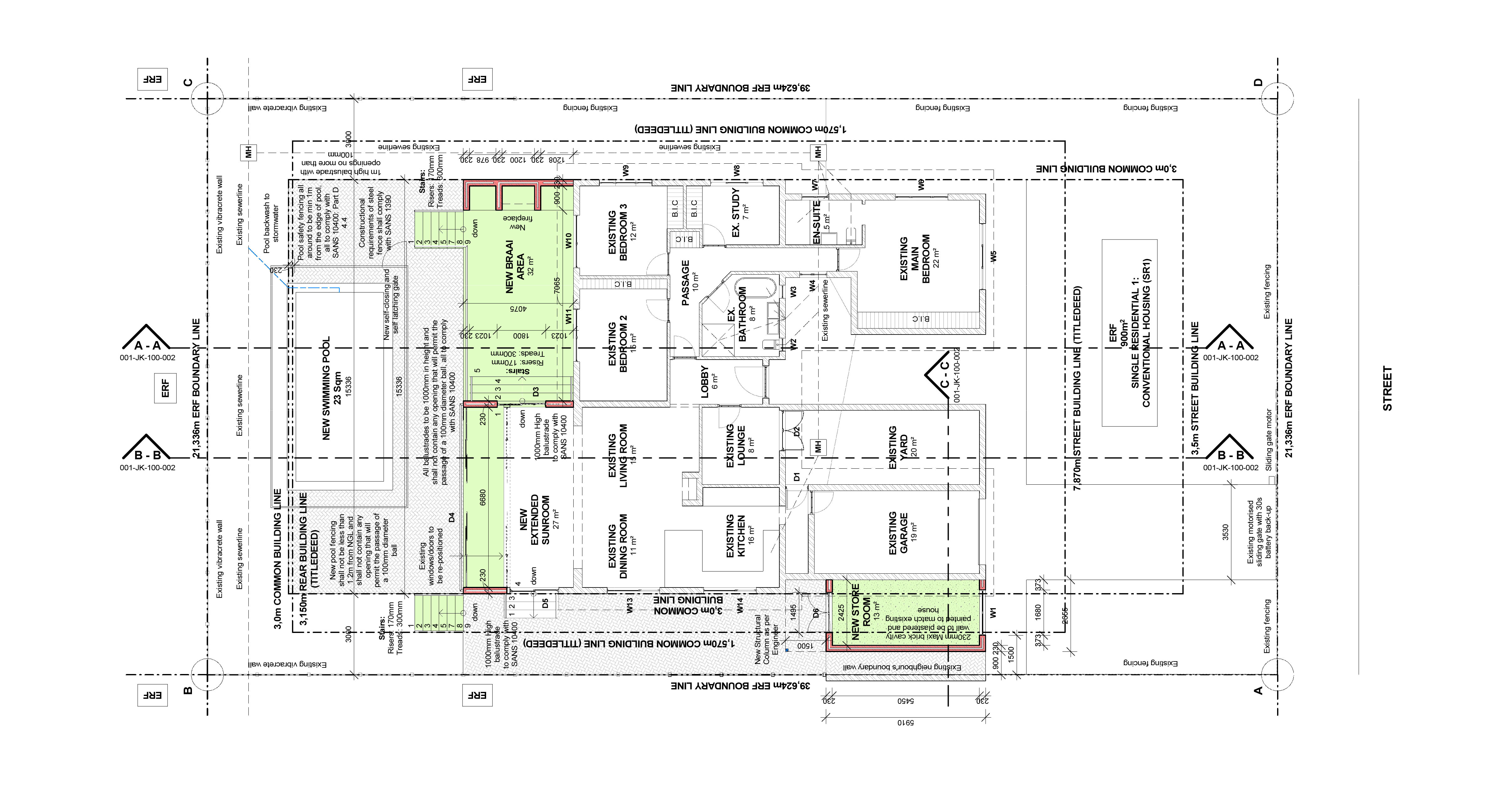
Proposed New Braai Room | Sunroom Extension | New Store Room | New Swimming Pool | Updated House Plans
Plot Size: 900 sqm
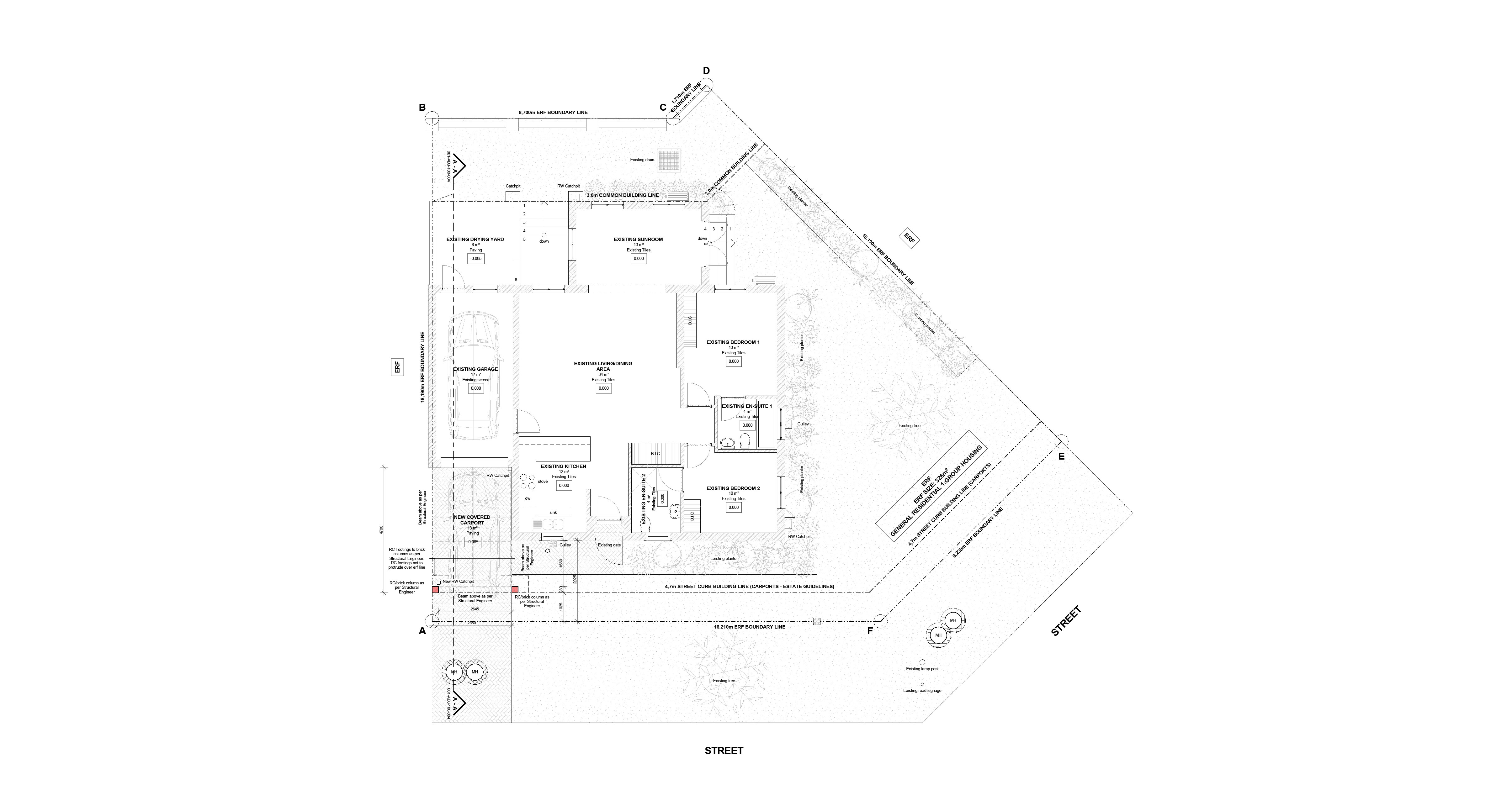
Proposed Carport | Garage to Granny Flat Conversion | Updated House Plans
Plot Size: 1259 sqm
Proposed New Carport | Updated House Plans
Plot Size: 326 sqm
Proposed Braai Room | Single Residential - Conventional Housing
Plot Size: 1000 sqm
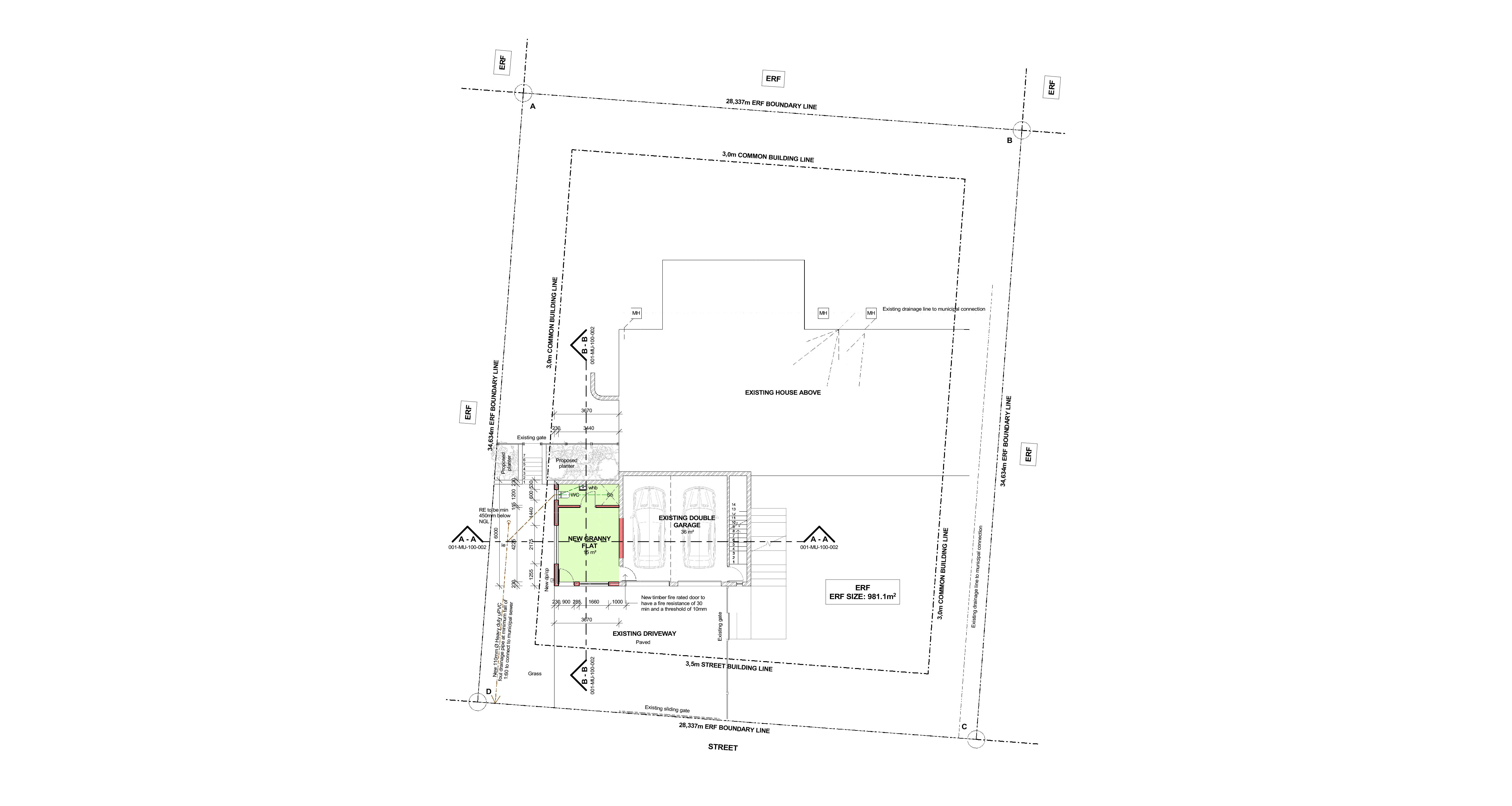
Proposed New Granny Flat | Updated House Plans
Plot Size: 981 sqm
Proposed new cabin | Updated Cabin Plans
Plot Size: 3250 sqm
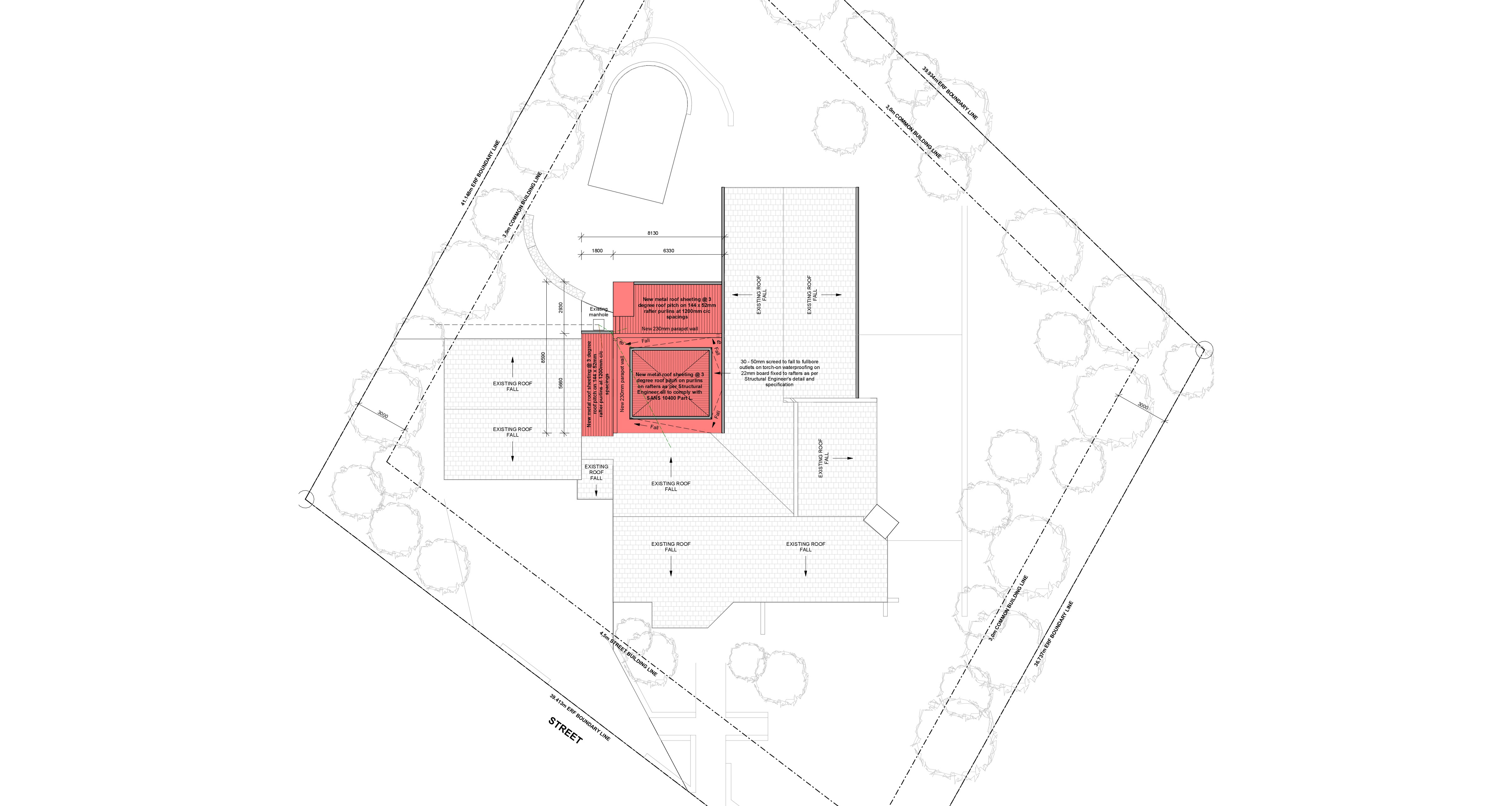
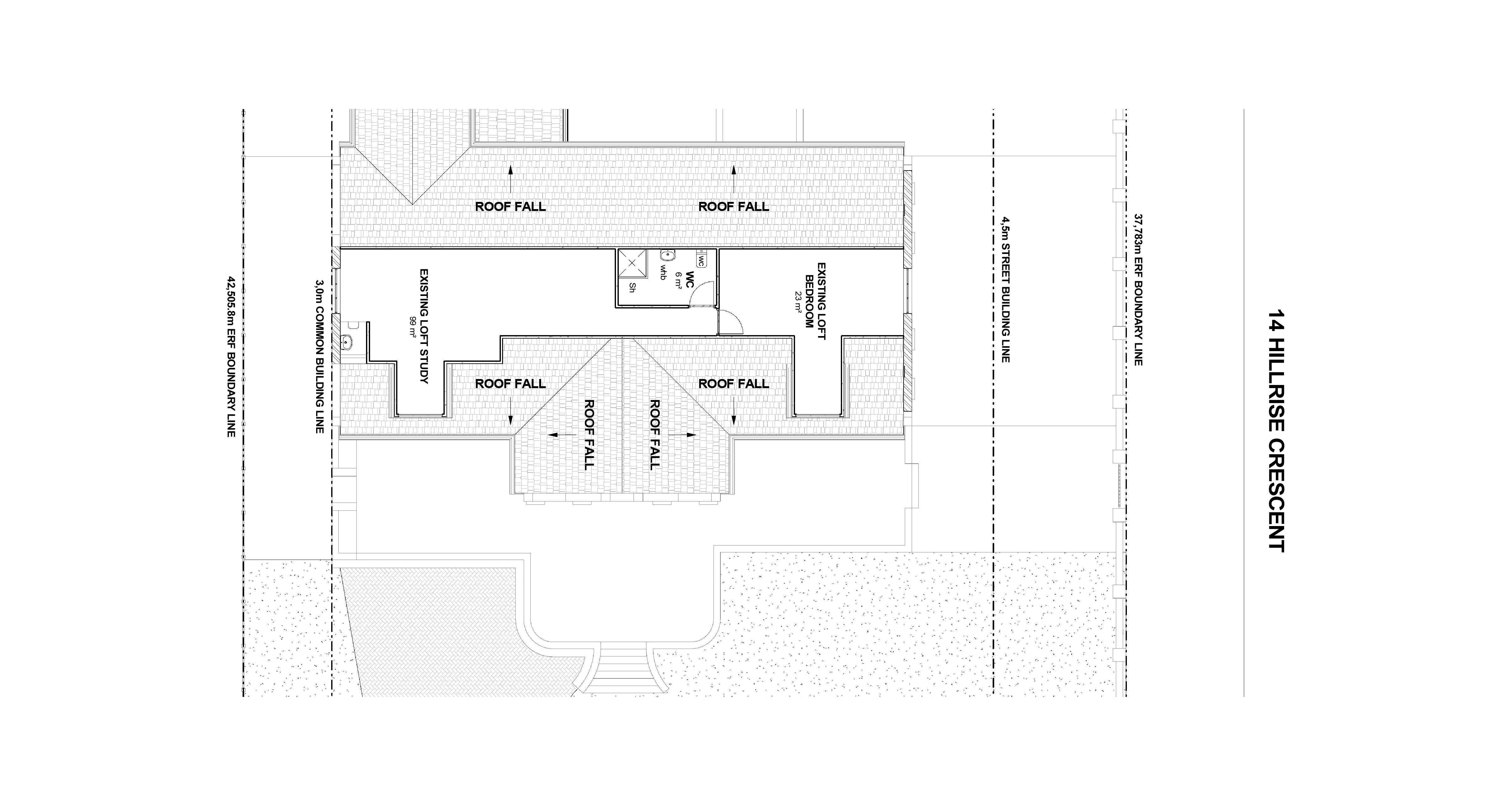
Proposed New Roof | Braai area | Bathroom | Scullery Extension | Updated House Plans
Plot Size: 1613.75sqm
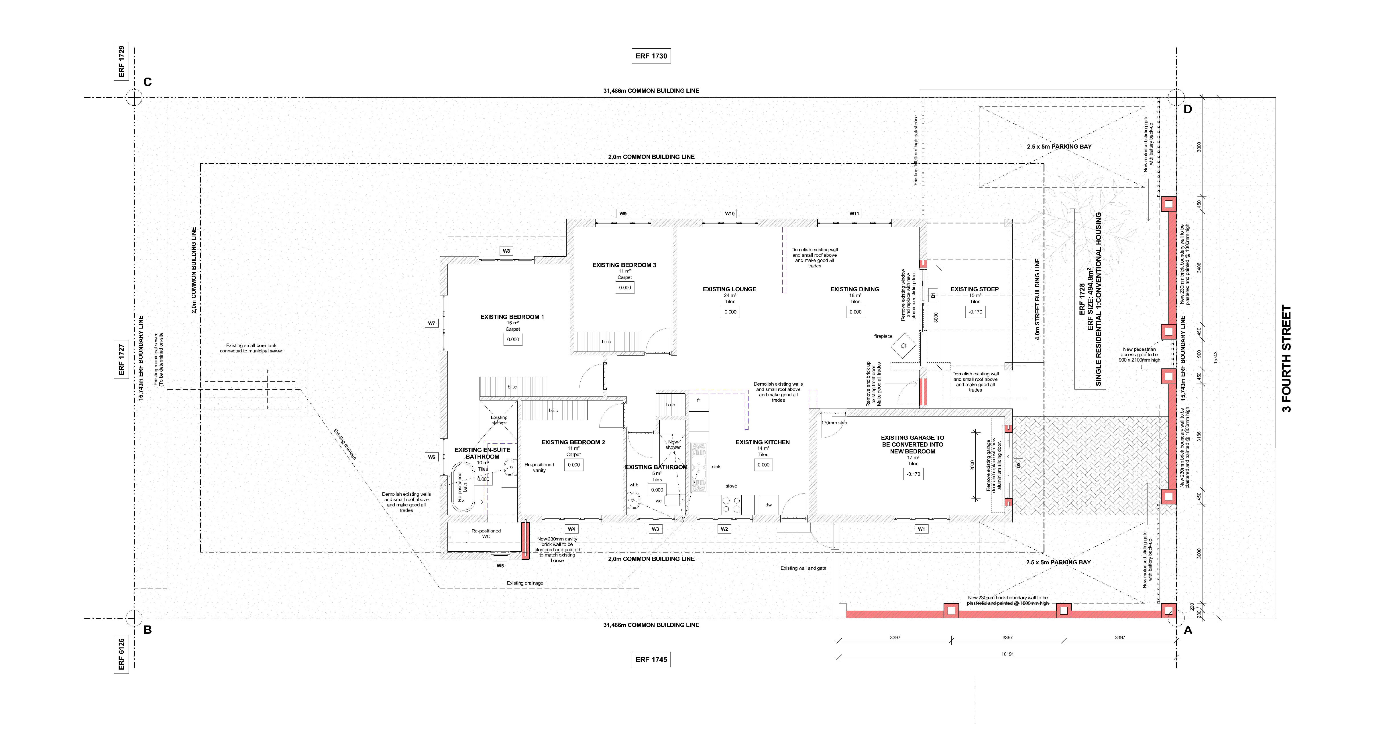
Proposed boundary wall / house alterations | Updated House Plans
Plot Size: 494.8sqm